Интерьер квартиры-студии 40,8 кв.
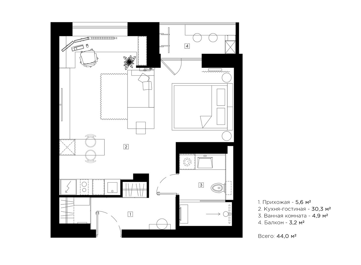
Интерьер квартиры-студии 40,8 кв.м (+ лоджия) в Минске для молодого мужчины. Архитекторы Игорь и Алена Скаржевские.










Интерьер квартиры-студии 40,8 кв.м (+ лоджия) в Минске для молодого мужчины. Архитекторы Игорь и Алена Скаржевские.










ОЧЕНЬ! Прям очень круто!
Все круто. Единственное, радиатор отопления под столом не очень удобное решение.
Где взять такие лампы ?