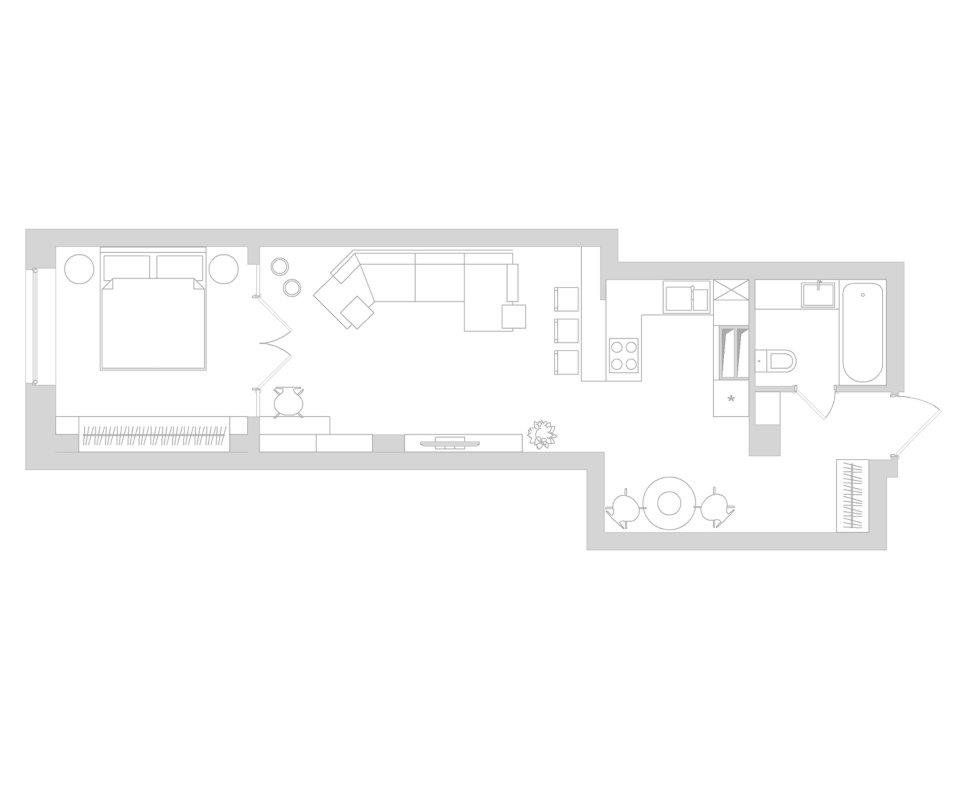
Проект квартиры сложной планировки: вытянутое помещение 47 кв.
Проект квартиры сложной планировки: вытянутое помещение 47 кв.м и всего одно окно. Дизайн киевской студии NTeam.









Проект квартиры сложной планировки: вытянутое помещение 47 кв.м и всего одно окно. Дизайн киевской студии NTeam.









Отжали коридор в общаге ?
Это вообще технически возможно, так смонтировать вытяжку?
Ирина, конечно
47 метров и одно окно! Как такое может быть??
Очень здорово ! Мне понравилось!
это Россия?
Инсоляция не по снипам же будет.. и у единственного окна сделать не гостиную, а спальню!! Рукалицо