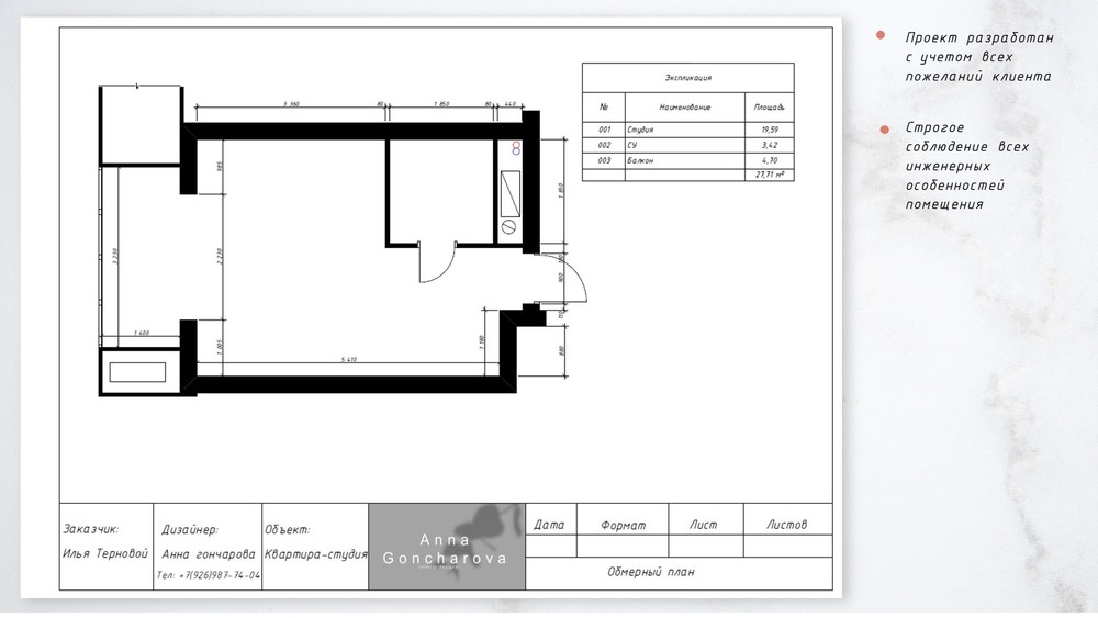
Проект студийной квартиры почти 28 м с присоединенной лоджией.
Проект студийной квартиры почти 28 м с присоединенной лоджией. Дизайнер Анна Гончарова (Art Shot).









Проект студийной квартиры почти 28 м с присоединенной лоджией. Дизайнер Анна Гончарова (Art Shot).









Мрачновато….
Темень,как в подземелье
Лучший вариант что я видел, есть тут кто, кто может сделать такой же дизайн в Краснодаре
Где приобрести идентичный шкаф- диван- кровать трансформер, или только на заказ?
в магазинах полно. И шкаф-кровать, и шкаф-диван-кровать. Но ценник от 100тыс
Мрачно как 🙈
Любопытно, но думаю фото не передает всей красоты, по этому кажется мрачно